Foto levereras av Google Street View och kan vara oprecist:
Butikslokal att hyra, Sundsvall, Norra Förmansvägen 22
Norra Förmansvägen 22, Sundsvall- Butikslokal att hyra
- 50 - 2 755 m2
Norra Förmansvägen 22, Sundsvall
- Butikslokal att hyra
- 50 - 2 755 m2
FÅ MER INFO OM LOKALEN
Du länkas till en annan portal, som kan kan kräva betalning eller skapande av en använderprofil
Butikslokal att hyra, Sundsvall, Norra Förmansvägen 22
ADR Fastighetsförvaltning AB
Glenn Rickardsson
tlf: +46 (0) 76 496 42 44
Se e-postadressxxxxxxxxxxxxxxx
Glenn Rickardsson
tlf: +46 (0) 76 496 42 44
Se e-postadressxxxxxxxxxxxxxxx
PRO-HYRESVÄRD
Läs merLäs om hyresvärd
Flexibel lokal i Birsta med möjlighet att anpassa ytor efter behov
Fastigheten har ett attraktivt läge i Birsta i Sundsvall, med närhet till E4, IKEA och övrigt handelsområde. Här erbjuds stora och flexibla ytor som kan anpassas efter verksamhetens behov.
Lokalerna kan delas upp och utformas i mindre enheter, vilket gör att både mindre och större företag kan hitta en lösning som passar. Planlösningen är relativt öppen och ger goda möjligheter att skapa en effektiv disposition för exempelvis lager, logistik, industri, verkstad, butik eller kontor.
Fastigheten är uppförd i två plan med god bärighet även på övre plan. Det finns en stor inglasad entré, lastkaj med port samt flera personentréer. Den generösa tomtytan ger bra förutsättningar för transporter, uppställning och logistik.
Ytor:
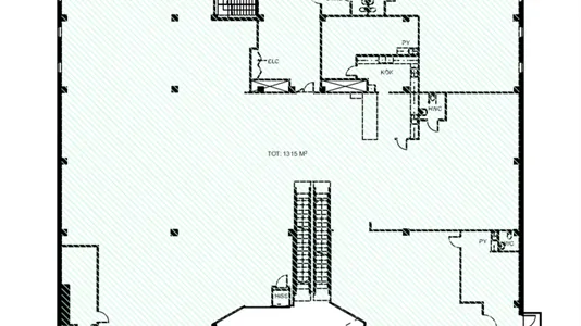
Plan 0: 1 440 m²
Plan 1: 1 315 m²
Markyta 1: 1 850 m²
Markyta 2: 2 425 m²
Flera strategiskt placerade VA-anslutningar underlättar anpassning till olika typer av verksamheter.
Läget i Birsta ger tillgång till ett av Norrlands starkaste handelsområden med hög tillgänglighet och stort upptagningsområde.
Fastigheten ägs och förvaltas av en engagerad privat fastighetsägare.
Kontakta oss gärna så berättar vi mer och ser hur vi kan anpassa lokalen efter era behov.
Lokalerna kan delas upp och utformas i mindre enheter, vilket gör att både mindre och större företag kan hitta en lösning som passar. Planlösningen är relativt öppen och ger goda möjligheter att skapa en effektiv disposition för exempelvis lager, logistik, industri, verkstad, butik eller kontor.
Fastigheten är uppförd i två plan med god bärighet även på övre plan. Det finns en stor inglasad entré, lastkaj med port samt flera personentréer. Den generösa tomtytan ger bra förutsättningar för transporter, uppställning och logistik.
Ytor:
Plan 0: 1 440 m²
Plan 1: 1 315 m²
Markyta 1: 1 850 m²
Markyta 2: 2 425 m²
Flera strategiskt placerade VA-anslutningar underlättar anpassning till olika typer av verksamheter.
Läget i Birsta ger tillgång till ett av Norrlands starkaste handelsområden med hög tillgänglighet och stort upptagningsområde.
Fastigheten ägs och förvaltas av en engagerad privat fastighetsägare.
Kontakta oss gärna så berättar vi mer och ser hur vi kan anpassa lokalen efter era behov.